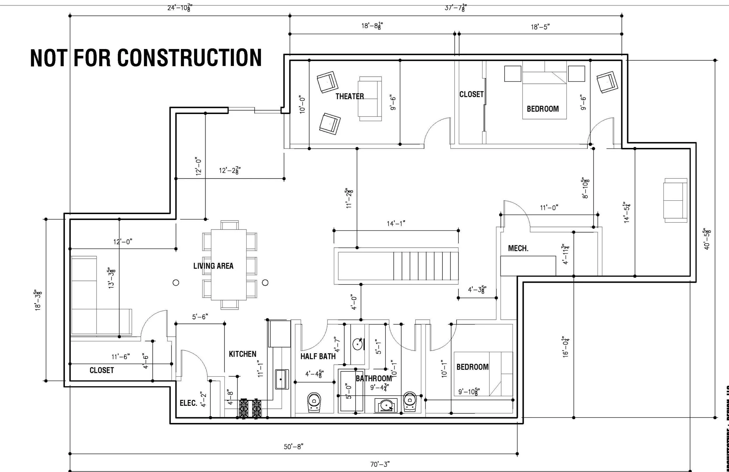
Basement design — unfinished basement, Bowie, Maryland
Studio J prepared a permit-ready design to convert an unfinished Bowie basement into a flexible, code-compliant living area. Scope: space planning, egress/code compliance, mechanical/electrical coordination, and final construction drawings for county submission.
Highlights
Program: family/recreation area, bedroom with compliant egress, full bath, storage/mech room, efficient circulation.
Code/permits: full permit set addressing egress windows, ceiling heights, insulation, fire separation, mechanical/ventilation per Maryland and Prince George’s County rules.
Systems: located HVAC, water heater, laundry with required clearances; ventilation and energy insulation details.
Docs: plans, sections, details, schedules, and electrical/lighting layout for bidding and construction.
Outcome: drawings submitted and approved; client satisfied with space use and clear documentation.
Result: permit-ready package balancing code compliance, systems coordination, and flexible layout.
Photo Credit: Domino Visual Media
Studio J Architecture + Design LLC was engaged to design and construct a new patio for the client. The design thoughtfully incorporates circular and gently curved patterns to harmonize with the existing deck and its curved stone sitting wall, and the plan includes installation of a new gas fire pit as a focal gathering feature. Carefully selected landscaping and plantings complete the composition, softening edges and tying the outdoor living space together.
The house is sited on a vegetative site outside of the city. The house is made of two volumes that house the public side of the home and the private side. The house sits on a concrete plinth with a water feature and concrete walls that define the boundary of the homes back yard space.
The pivot house is defined by two rectangular forms. One of the rectangular forms is rotated at an angle and connected by central volume. A constructed fence creates an enclosed yard with a planted tree. Entry to the rectangular volumes are defined by two custom made wood doors that pivot open for entry. The house is constructed from concrete giving it a heavy presence in the landscape.
The working house incorporates three bedrooms and a work area for one of the occupants. The working house design uses different materials to highlight various zones of the house distinguishing public areas from private areas of the home. For example the work area is clad in red corrugated metal distinguishing this volume as the working zone of the house.
The home was designed with a young bachelor in mind. The house is a one bedroom starter home for a young professional with a pool for outdoor entertaining. The house uses materials such as wood cladding, wood frame windows and red metal paneling.
The forest house is a cabin like home designed as a prefabricated home. A client could simply pick a wooded site for this prefabricated home. The second floor has and outdoor balcony and plenty of windows for views of the wooded site.
The split house is a simple design. The entry divides the private from the public areas of the house. The L-shaped layout creates a plaza for outdoor living.